Leírás
EcoModul Home – modern könnyűszerkezetes otthonok természetes alapokon
Fedezd fel az Ecomodul Home világát, ahol a hagyományos építőanyagok, mint a fa és a kőzetgyapot találkoznak a korszerű építéstechnológiával. Az eredmény időtálló, energiatakarékos és esztétikus otthonok, melyek a legszigorúbb hazai építési szabványoknak is megfelelnek. Akár egy vidéki stílusú pajtaházra, akár egy letisztult modern otthonra vágysz, nálunk megtalálod az ideális megoldást.
Nettó alapárak
Szerkezetkész kivitel már 345.000 Ft/m2-től
Kulcsrakész alapkivitel 496.000 Ft/m2-től
Kulcsrakész prémium kivitel 630.000 Ft/m2-től
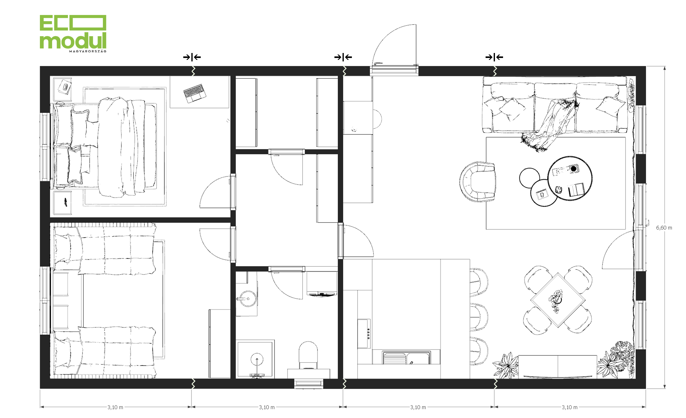
Pajtaház stílus – vidéki hangulat modern kivitelben
Az egyik legnépszerűbb típusunk a pajtaház, mely ötvözi a tradicionális formavilágot a modern lakhatási igényekkel. Letisztult tetőforma, fa homlokzat, nagy üvegfelületek. A pajta stílusú EcoModul Home otthon meleg, természetközeli hangulatot áraszt, miközben minden kényelmi elvárásnak is megfelel.
Szerkezetkész kivitel már 345.000 Ft/m2-től
Amennyiben saját kezűleg vagy saját csapattal szeretnéd befejezni az otthonodat, a szerkezetkész változat ideális megoldás
- teljes szerkezet: faváz, kőzetgyapot szigetelés, tetőszerkezet
- külső nyílászárók beépítve
- külső homlokzati burkolatok elkészítve
- víz és villany előkészítés
Kulcsrakész alapkivitel már 496.000 Ft/m2-től
A gyors beköltözés híve vagy? Válaszd a kulcsrakész kivitelezést, ahol minden fontos belső és külső munka máris készen van
- belső válaszfalak, burkolatok, szerelvények
- teljes gépészet és elektromos rendszer
- fürdőszoba és konyhai kiállások előkészítve
- fűtés hőszivattyú vagy elektromos rendszer
Kulcsrakész prémium kivitel már 630.000 Ft/m2-től
A legmagasabb igényekhez készült csomagunk. A kulcsrakész prémium kivitel nemcsak teljes belső felszereltséget, hanem extra kényelmi funkciókat is tartalmaz
- design belsőépítészeti megoldások
- magas minőségű burkolatok, nyílászárók és beépített bútorok
- okos otthon előkészítés vagy telepítés
- energetikai optimalizálás (napelem előkészítés stb.)
Teljes körű engedélyezési és tervezési támogatás
Minden projektünkhöz teljes körű engedélyezési tervdokumentációt biztosítunk, így neked nem kell bajlódnod a hivatali ügyintézéssel. Segítünk a településképbe illeszkedő épületforma kialakításában és végig kísérünk a tervezéstől a beköltözésig.
Miért válaszd az EcoModul Home-ot?
Természetes alapanyagok – fa és kőzetgyapot
Kiemelkedő hőszigetelés és energiatakarékosság
Gyors, gyári előregyártású kivitelezés
Pajtaház és más egyedi design opciók
Akár kulcsrakészen, teljes belsőépítészeti kivitelezéssel
Lépj velünk kapcsolatba most és tervezzünk együtt egy szép otthont neked
Vagy gyere el Sóskútra a központunkba, itt minden lehetőséget megmutatunk






















